The following is selected work from my design thesis project. This follows on from City of Sound, the initial research stage which provides the context and brief of the design solution in the latter portion of the project, The Musical Microcosm.
Glasgow’s music scene is under siege; threats to grassroots, venue closures, crumbling support systems, and homogenisation threatening the industry’s musical diversity. However, from adversity comes opportunity; from the ruins of the industry a new musical reality for Glasgow grows. This thesis proposes architecture that redefines how music is created, performed, and experienced.
Set within the walls of the O2 ABC, a site symbolic of the industry’s decline due to its unnecessary destruction, the project constructs a self-sustaining musical microcosm that flips the industry’s narrative: musicians and industrians are truly accommodated, and every facet of music-making is made visible. Inspired by themes from Rancière’s The Emancipated Spectator, the design challenges passive audiences by drawing the public into the creative process, fostering a deeper understanding of the art form. These design elements also help to make music more socially accessible to those outwith the industry or community.
THE MUSICAL MICROCOSM
2024-2025, Ink and Pencil on Paper/Hand-Modelled.
The following is selected work from my design thesis project. This follows on from City of Sound, the initial research stage which provides the context and brief of the design solution in the latter portion of the project, The Musical Microcosm.
Glasgow’s music scene is under siege; threats to grassroots, venue closures, crumbling support systems, and homogenisation threatening the industry’s musical diversity. However, from adversity comes opportunity; from the ruins of the industry a new musical reality for Glasgow grows. This thesis proposes architecture that redefines how music is created, performed, and experienced.
Set within the walls of the O2 ABC, a site symbolic of the industry’s decline due to its unnecessary destruction, the project constructs a self-sustaining musical microcosm that flips the industry’s narrative: musicians and industrians are truly accommodated, and every facet of music-making is made visible. Inspired by themes from Rancière’s The Emancipated Spectator, the design challenges passive audiences by drawing the public into the creative process, fostering a deeper understanding of the art form. These design elements also help to make music more socially accessible to those outwith the industry or community.
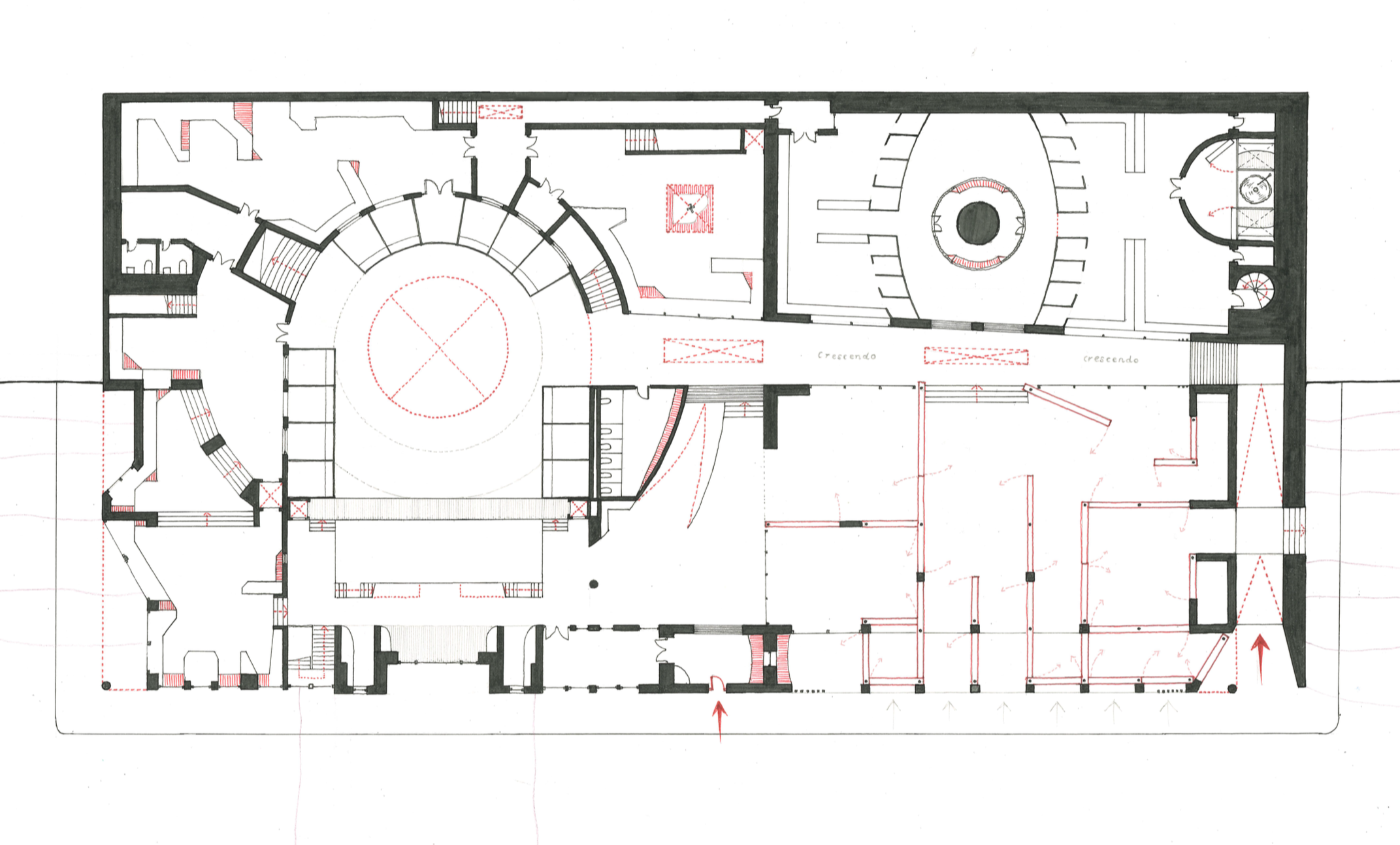
The microcosm proposes a condensed city of music within the foot print of the existing ABC and its neighbour, formerly ABC 1. The building is host to all things music; spaces for practise, teaching, recording, producing and performance, instrument making, and archives of books, CDs and vinyl. Central to the layout is the ballroom, the multi-purpose heart of the microcosm. Here, users can rehearse and perform, and craftspeople have a platform to sell and exchange their skills and service to others in the community. Its varied uses keep it in constant activity, drawing in the public whilst benefiting the local musicians and industrians.
The microcosm proposes a condensed city of music within the foot print of the existing ABC and its neighbour, formerly ABC 1. The building is host to all things music; spaces for practise, teaching, recording, producing and performance, instrument making, and archives of books, CDs and vinyl. Central to the layout is the ballroom, the multi-purpose heart of the microcosm. Here, users can rehearse and perform, and craftspeople have a platform to sell and exchange their skills and service to others in the community. Its varied uses keep it in constant activity, drawing in the public whilst benefiting the local musicians and industrians.
With one of the industry’s most pressing issues being the decline of musical trades, such as instrument making and maintenance, the microcosm seeks to give businesses a public facing space which generates interest and exposure, as well as facilitating an apprenticeship scheme within the building which will help to educate the younger generation in certain crafts, as well as create more career opportunities for local non-musicians and non-industrians. Again, visibility on the high street was a key consideration in the design of workshop spaces, and this is maximised by the design of the internal “street”.
In order to create more opportunities for street frontage, and therefore more visibility for musical trades and activity, the main circulation route through the building evolved into a sheltered secondary street, similar in concept to an arcade. Drawing inspiration from arcades in Glasgow, the street’s entrances are framed at either end by characteristic archways, which lead into a naturally lit full height void whose increasing width signifies the journey to the heart of the microcosm; the ballroom.
With one of the industry’s most pressing issues being the decline of musical trades, such as instrument making and maintenance, the microcosm seeks to give businesses a public facing space which generates interest and exposure, as well as facilitating an apprenticeship scheme within the building which will help to educate the younger generation in certain crafts, as well as create more career opportunities for local non-musicians and non-industrians. Again, visibility on the high street was a key consideration in the design of workshop spaces, and this is maximised by the design of the internal “street”.
Ballroom Internal Facade Model @1:25
Ballroom Section Model @1:50
Ballroom Section Model @1:50
The Record Room Concept Model @1:25
Practise Pod Section Model @1:25
Ballroom Market Stall Sketch Model 1:20
Ballroom Market Stall Sketch Model 1:20
The Accordion Temporary Wall Model @1:10
The Accordion Temporary Wall Model @1:10
The Accordion Temporary Wall Model @1:10
Paper Concept Model (With Vinyl Sleeve Dimensions)
Clay Window Sketch Model @1:25
The disco ball is a symbol of fun, music, dance, and communal celebration. Its simple geometry catches and reflects light in every direction, creating a familiar atmosphere of energy and shared experience. I began noticing it everywhere in Glasgow, not just in venues like St Luke’s and Barrowlands (and the former ABC), but also in cafes, restaurants and bars. In the microcosm’s central space, the disco ball becomes more than decoration; it manifests as a central architectural element. The large glass globe skylight, sits above the “ball”room. The market surrounds it, facing the stage, and the full height volume reinforces the idea that the rest of the programme revolves around this place of gathering.
The disco ball is a symbol of fun, music, dance, and communal celebration. Its simple geometry catches and reflects light in every direction, creating a familiar atmosphere of energy and shared experience. I began noticing it everywhere in Glasgow, not just in venues like St Luke’s and Barrowlands (and the former ABC), but also in cafes, restaurants and bars. In the microcosm’s central space, the disco ball becomes more than decoration; it manifests as a central architectural element. The large glass globe skylight, sits above the “ball”room. The market surrounds it, facing the stage, and the full height volume reinforces the idea that the rest of the programme revolves around this place of gathering.
While the musician’s entrance is immediate to Sauchiehall Street and clearly expressed in its appearance, the public interact with the building in a different way. The building encourages the public to view various activities at glazed openings along the High Street, but they are not always presented the opportunity to enter directly from the high street. Each of the public’s entrances encourage users to engage or journey through the building in some way, before accessing main spaces. The listening booth is not only a free listening facility, but a lift which transports users from the busy street, into a quiet, sound insulated listening pod, and subsequently to the archive. Its form references that of old listening booths in record stores throughout the 60s and 70s, and is hidden in the existing concrete shell of the ABC on Dalhousie Street.
While the musician’s entrance is immediate to Sauchiehall Street and clearly expressed in its appearance, the public interact with the building in a different way. The building encourages the public to view various activities at glazed openings along the High Street, but they are not always presented the opportunity to enter directly from the high street. Each of the public’s entrances encourage users to engage or journey through the building in some way, before accessing main spaces. The listening booth is not only a free listening facility, but a lift which transports users from the busy street, into a quiet, sound insulated listening pod, and subsequently to the archive. Its form references that of old listening booths in record stores throughout the 60s and 70s, and is hidden in the existing concrete shell of the ABC on Dalhousie Street.