THE BEACON

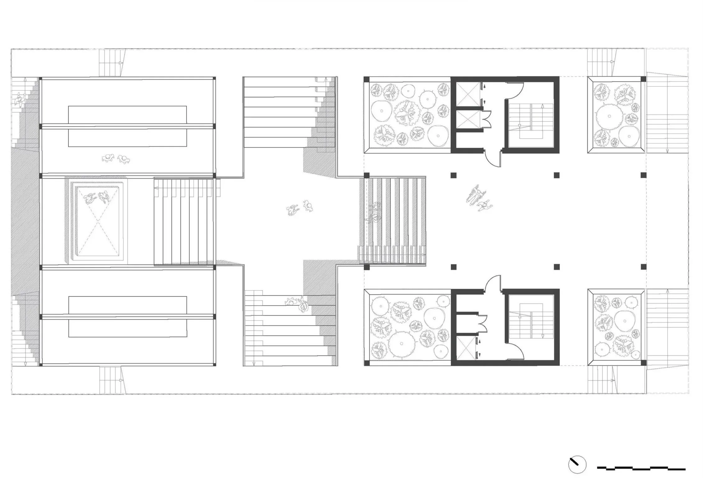
The Beacon on the Water of Leith was a response to the needs of Leith Theatre Group, a charitable organisation founded to support the historic Leith Theatre building when it was threatened to be demolished and replaced. The site along the river presented an opportunity to garner attention from a busier and more developed area of town. Situated here, the building essentially begins a trail of interest for the public, leading pedestrians towards the theatre complex and therefore reactivating the route into the town. The trail features a range of instrumental urban interventions, each of which ascending in scale, difficulty, and degree of engagement, until ultimately arriving at the destination; Leith Theatre. The Beacon not only ignites engagement for the existing theatre complex, but also provides an accessible local platform for young and undiscovered artists to take their first step on the ladder, both in teaching and performance; reinforcing a mutually beneficial exchange between the amateur and the artist.

2023-2024, Digitally Visualised/Hand-Modelled.

The Beacon on the Water of Leith was a response to the needs of Leith Theatre Group, a charitable organisation founded to support the historic Leith Theatre building when it was threatened to be demolished and replaced. The site along the river presented an opportunity to garner attention from a busier and more developed area of town. Situated here, the building essentially begins a trail of interest for the public, leading pedestrians towards the theatre complex and therefore reactivating the route into the town. The trail features a range of instrumental urban interventions, each of which ascending in scale, difficulty, and degree of engagement, until ultimately arriving at the destination; Leith Theatre. The Beacon not only ignites engagement for the existing theatre complex, but also provides an accessible local platform for young and undiscovered artists to take their first step on the ladder, both in teaching and performance; reinforcing a mutually beneficial exchange between the amateur and the artist.

Previous
Previous

Singapore Lino

Next
Next

Portrait of Sara